PENZION RYCHTA
REKONSTRUKCE A DOSTAVBA AREÁLU RYCHTA NA ŠTĚPÁNCE / MLADÁ BOLESLAV / 2016
Soubor staveb bývalé Baráčnické rychty, který se nachází u jednoho ze vstupů do parku Štěpánka, byl odnepaměti veřejnou stavbou. V tomto duchu navrhujeme obnovu objektů, přičemž hlavním cílem rekonstrukce je zachovat charakter místa a obnovit jeho původní autenticitu.
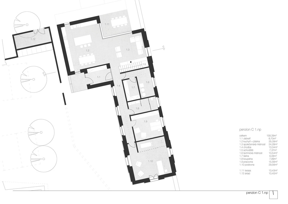
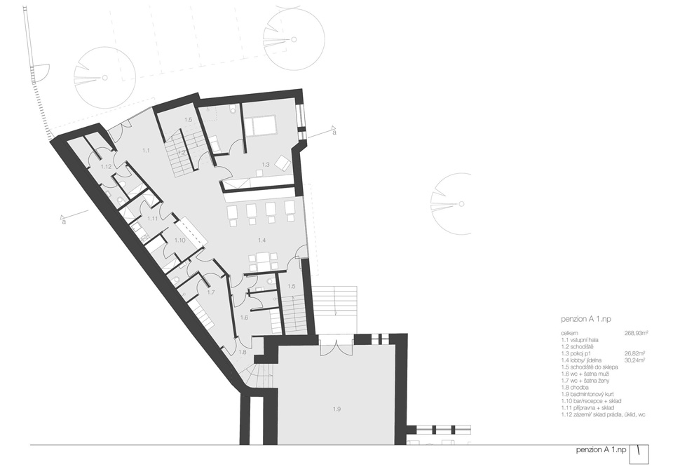
Areál podle návrhu slouží jako PENZION RYCHTA s různorodými pokoji či apartmány a s badmintonovým kurtem jakožto doplňkovou službou penzionu.
Stávající objekty jsou obnoveny včetně původních historických fasádních prvků, jsou barevně sjednoceny v odstínech bílé a šedé.
Všechny přístavby jsou koncepčně shodné v tvarovém, materiálovém a barevném řešení. Cíleně jsou navrženy v těchto aspektech odlišně od stávajících staveb, přesto jako celek areál působí harmonicky.
∎ stav: projednávání stavebního povolení
