SPORTOVNÍ HALA MODŘICE
NÁVRH NOVOSTAVBY VÍCEÚČELOVÉHO SPORTOVNÍHO CENTRA PRO MALÉ MĚSTO / SOUTĚŽ 2015
diplomka
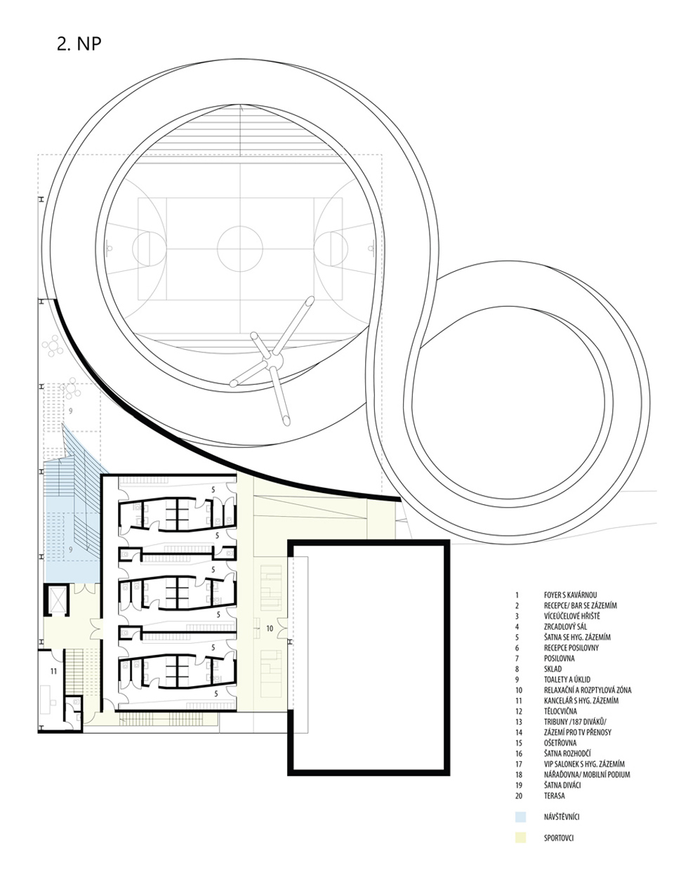
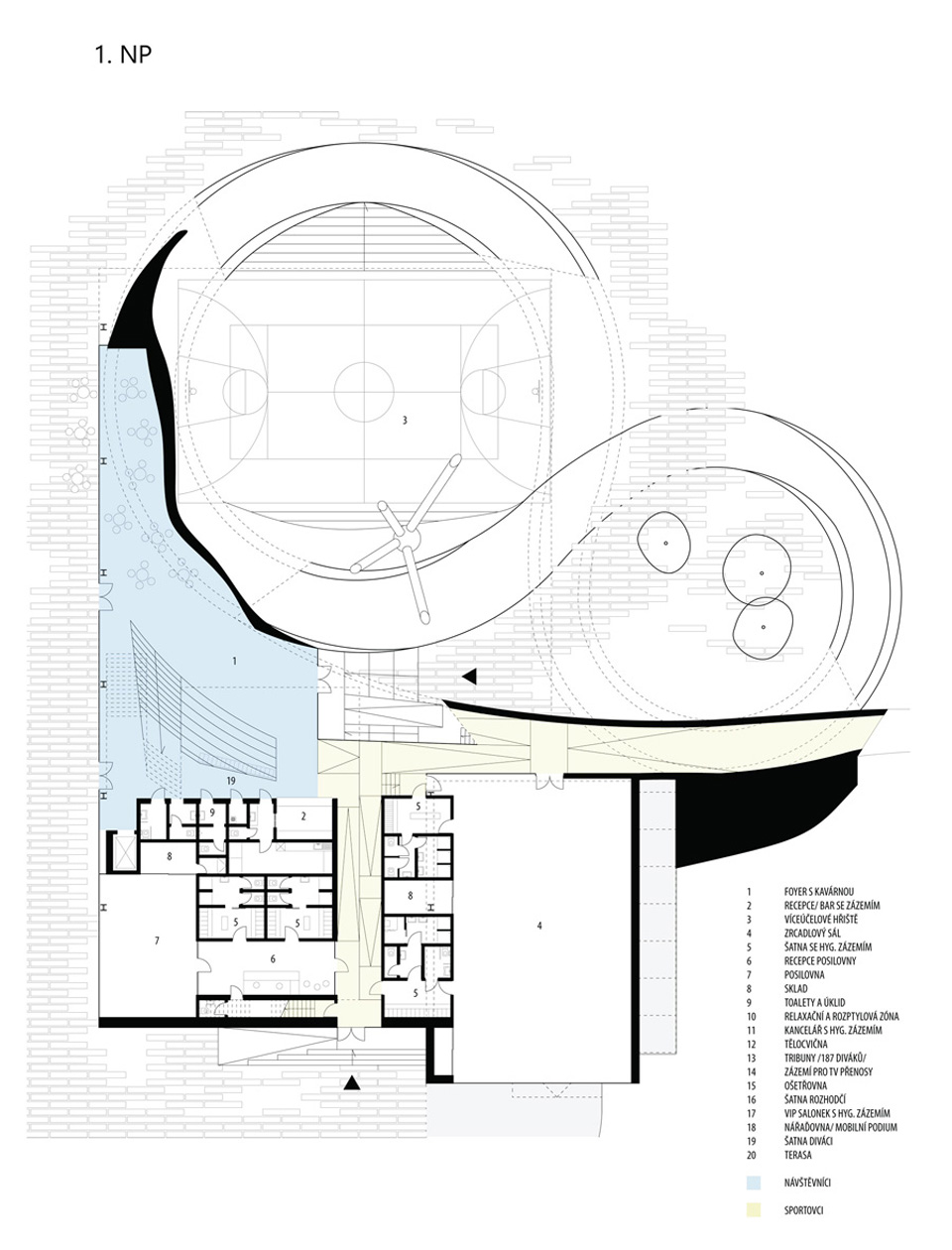
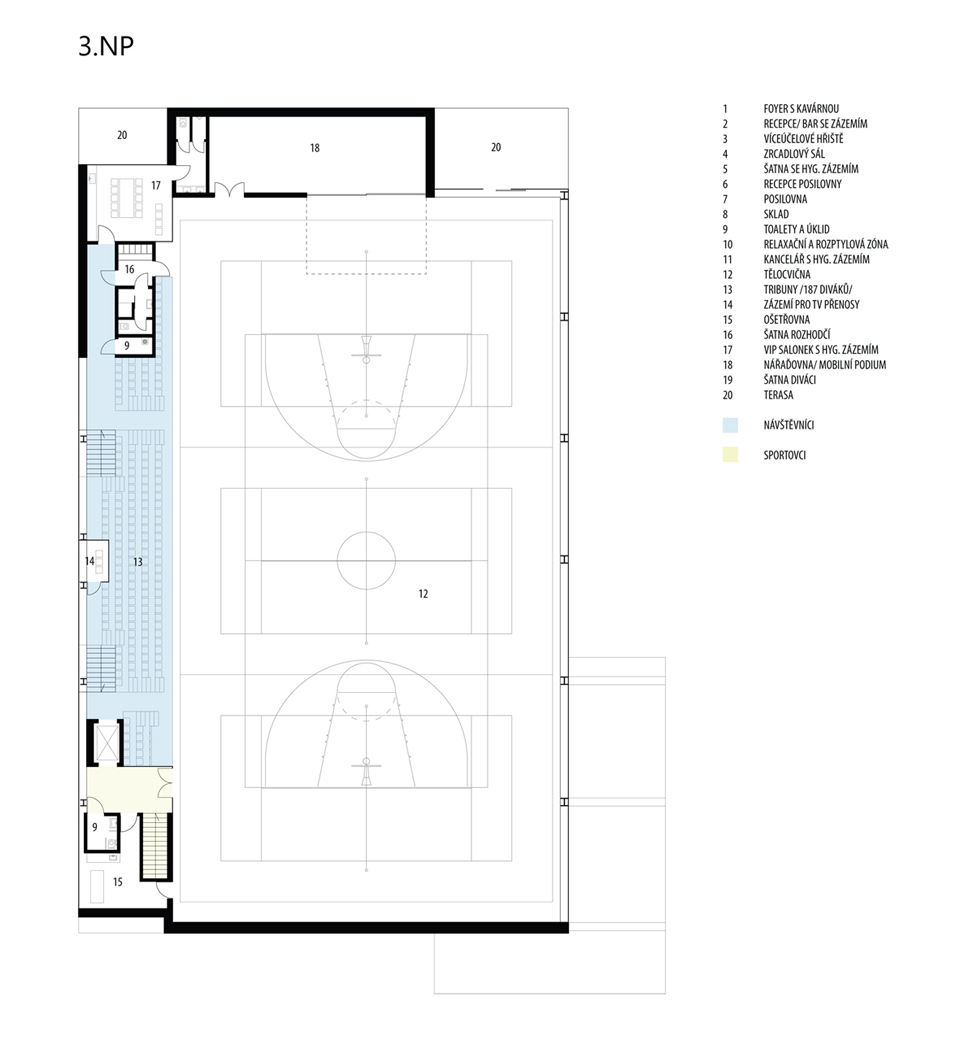
S naším návrhem přestává být SPORTOVNÍ HALA centrem aktivity pouze pro uzavřené skupiny, ale stává se interaktivním, DEMOKRATICKÝM PROSTOREM reagujícím na současné známé, ale i budoucí potřeby všech obyvatel Modřic. Prostor vstupu (vnější AGORA/ HŘIŠTĚ) se stává NEJVĚTŠÍM ZASTŘEŠENÝM VEŘEJNÝM PROSTOREM MĚSTA, místem každodenních sportovních a rekreačních aktivit a zároveň výjimečných městských akcí (festivalů, divadel, koncertů, sportovních soutěží, politických kampaní, TV přenosů atd.).
VŠE KONEČNĚ NEZÁVISLÉ NA POČASÍ! Prostor fungující v dešti i sněhu, ve dne i v noci. V létě i zimě. Prostor pro děti, mládež, dospělé i seniory. Prostor pro vše a všechny.
∎     spolupráce: Szymon Rowalka, Ada Rypl Žabčíková
∎     vizualizace: Tomáš Mokrý
∎     stav: soutěž